Estado
Em construção
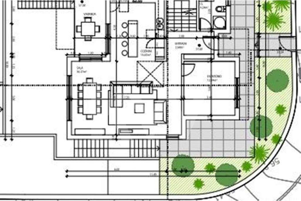
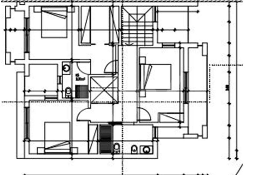
Moderna e Espaçosa Moradia Gemidada T3 com Piscina em Vale de Milhaços Em projeto de construção,Esta moradia será distribuida da seguinte forma:Piso 0: Hall de entrada e escadas interiores de acesso ao piso 1; - Zona social composta por sala de jantar e estar com 33,37m² e varanda de 8,81m² - Cozinh...
Ler mais ...
Geral
Edifício
Garagem
Corroios, Seixal, Setúbal
Sabe quanto vale a sua casa?
Para saber mais informações, consulta a nossa Política de privacidade.


