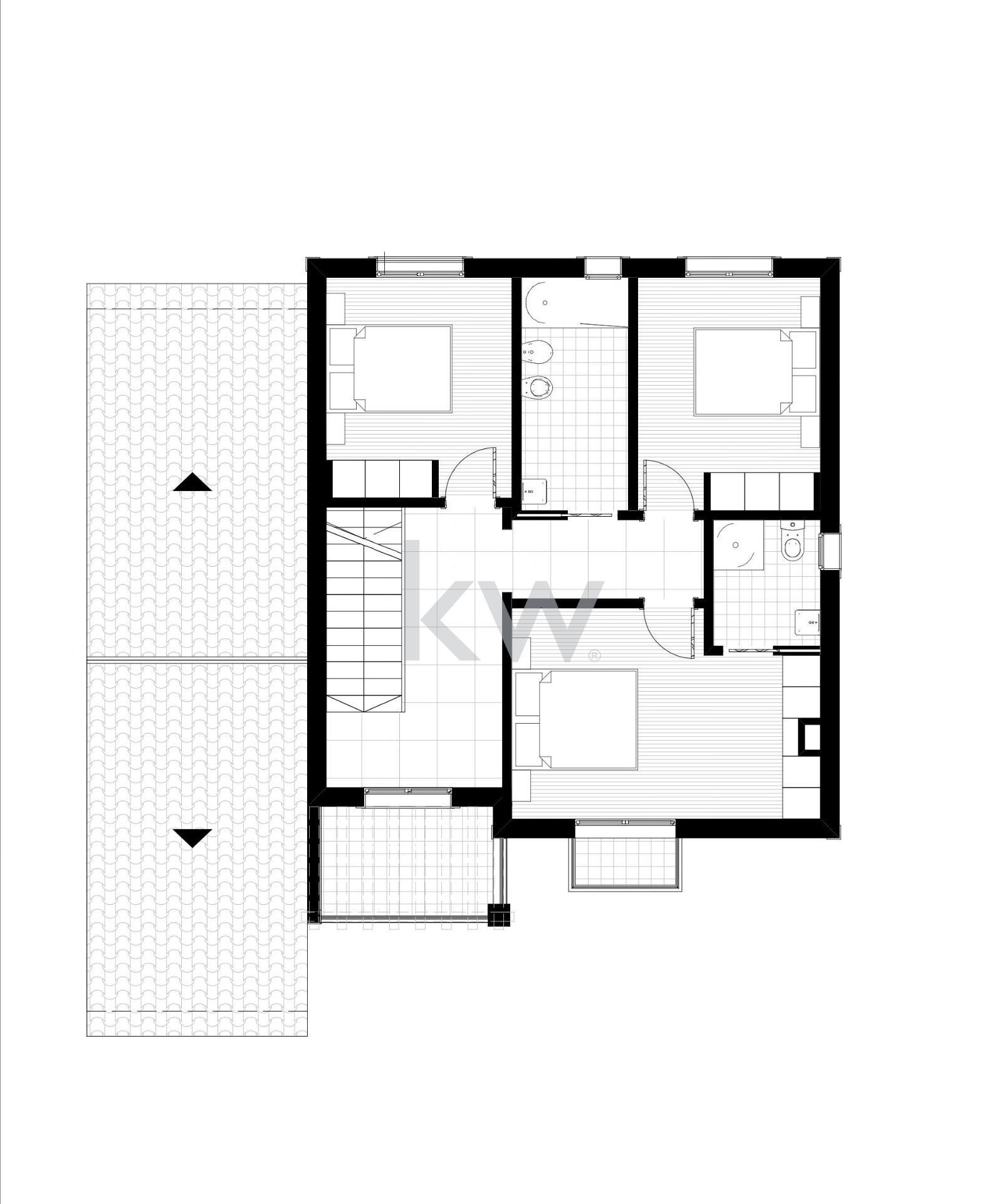
Terreno para Construção de Moradia com 291m2 em Paradela Terreno plano com viabilidade de construção, já teve projeto aprovado de Moradia T3 com garagem. Ao escolher Um Consultor - KW Union obtém : - Um Consultor imobiliário com uma excelente formação do mercado - Visualização das casas com antec...
Ler mais ...
Paradela, ESPINHEL, 3750-405, Águeda, Aveiro
Sabe quanto vale a sua casa?
Para saber mais informações, consulta a nossa Política de privacidade.


