State
Construction
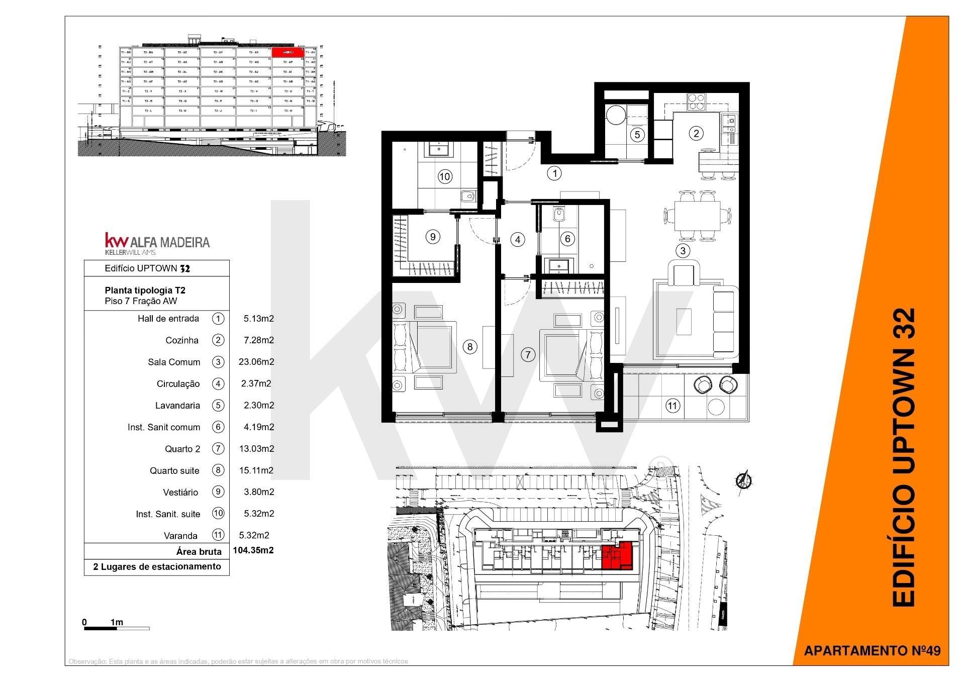
Excellent 2 bedroom flat, unique and exclusive, inserted in the new and modern development ‘UPTOWN 32’, located in the parish of São Martinho, in the municipality of Funchal. The main features of the new ‘Uptown 32’ development are its excellent areas, top quality finishes, large rooftop swimming p...
Read more ...
Do you know how much your house is worth?
For more information, see our Privacy Policy.


