Estado
Em construção
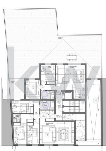
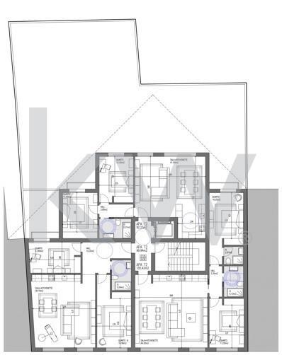
Moradia com terreno (Projeto de construção de Prédio de 9 fracções, em Aprovação), localizado no Barreiro, em Alto do Seixalinho, com a área total de 315 m2, aprovado na generalidade, No Terreno, encontra-se moradia devoluta. O terreno acima referenciado, tem em projeto, um edifício plurifamiliar,...
Ler mais ...
Sabe quanto vale a sua casa?
Para saber mais informações, consulta a nossa Política de privacidade.


