Geral
Edifício
Garagem
Corroios, Seixal, Setúbal
Para saber mais informações, consulta a nossa Política de privacidade.



Estado
Em construção
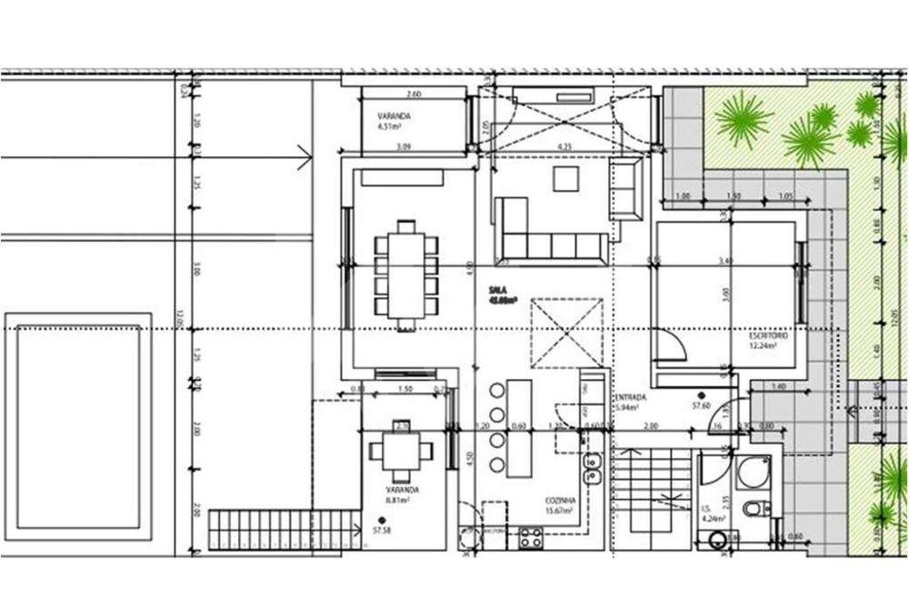
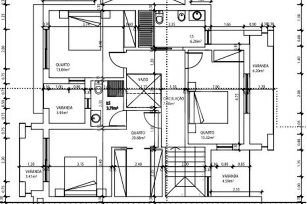
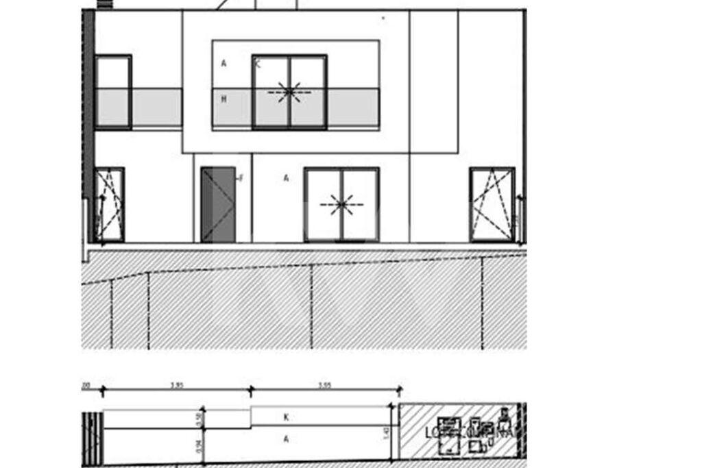
Moderna e Espaçosa Moradia em Banda T3 com Piscina em Vale de Milhaços Em projeto de construção,Esta moradia será distribuida da seguinte forma:Piso 0: Hall de entrada e escadas interiores de acesso ao piso 1; - Zona social composta por sala de jantar e estar com 45,06m² e varanda de 8,81m² - Cozinh...
Ler mais ...
Sabe quanto vale a sua casa?
436.0
192